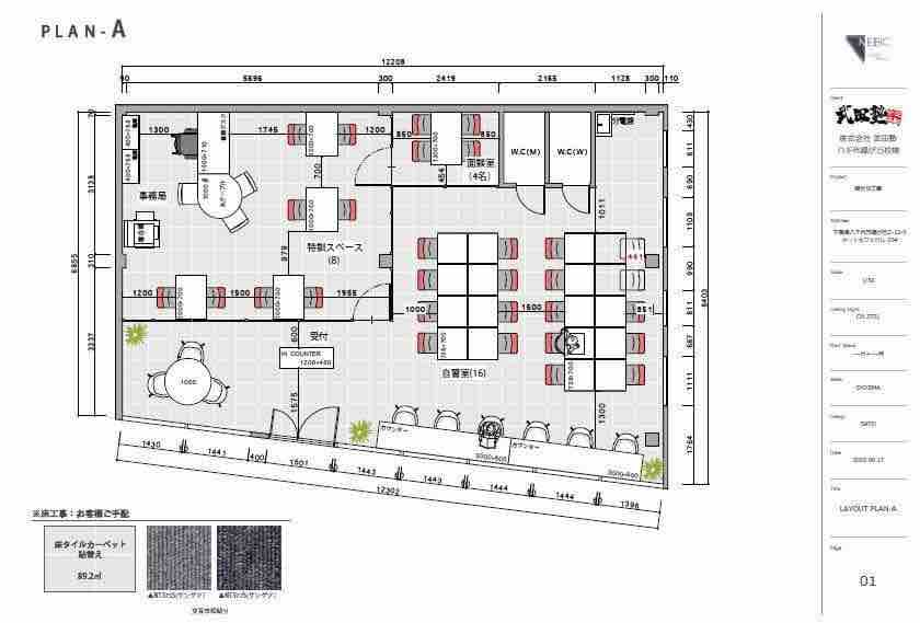
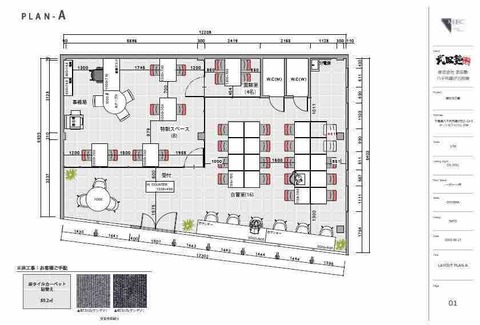
武田塾八千代緑が丘校‼️
いよいよ校舎の図面が出来てきました^_^

IMG_6836
IMG_6837
カッコいいかも‼️
事務室には
イタリア🇮🇹製の机を置くんだけど…‼️
頑張れイタリア🇮🇹
コロナに負けるな‼️
早く机を作ってくれ‼️

武田塾には珍しい
白基調のパーテーション^_^
デザインビルに合わせて🏙
許可が出ました♪

さて、
3メートルの机をどうするか❓